Vyhľadať

Dlhodobý prenájom priestranného garážového státia v Bratislave

Bratislava, Bratislavská ulica Aktualizované dňa: 13. 4. 2026

Dlhodobý prenájom priestranného garážového státia v Bratislave Dlhodobý prenájom priestranného garážového státia v Bratislave
Zdroj obrázku: bazos.sk

Parking.sk

Parking.sk
Dlhodobý prenájom ??? €/mes.
Bratislava, Bratislavská ulica

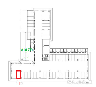
Ponúkame na dlhodobý prenájom priestranné garážové státie s rozmermi približne 2,7 x 5,1 m. Cena je konečná a zahŕňa všetky energie a poplatky. Vjazd je zabezpečený pohodlnou automatickou dvojbranou. Garáž je vybavená kamerovým systémom a je určená pre maximálne 50 áut, čo zaručuje komfort a súkromie.

Ceny za prenájom:
- 89 € mesačne pri ročnej platbe vopred (1 070 €)
- 98 € mesačne pri polročnej platbe vopred (590 €)
- 110 € mesačne pri štvrťročnej platbe vopred (330 €)
- 120 € mesačne pri mesačnej platbe vopred

Vratná zábezpeka za ovládač(e) je 100 €. V prípade záujmu nás prosím kontaktujte.

Viac info o parkingu: Pre zobrazenie odkazu sa prosím prihláste.

Typ parkingu

Garáž

Samostatná krytá uzamykateľná garáž s vlastným vstupom.

Mohlo by sa vám páčiť

×